Er du på udkig efter en lejlighed i hjertet af Herning? Så er denne rummelige og moderne 3-værelses lejlighed på 103 kvadratmeter i Fonnesbechsgade måske lige det, du leder efter. Her får du en bolig, hvor der er tænkt på både komfort og bekvemmelighed, og med dens centrale beliggenhed er du tæt på både banegården, gågaden og alle byens tilbud.
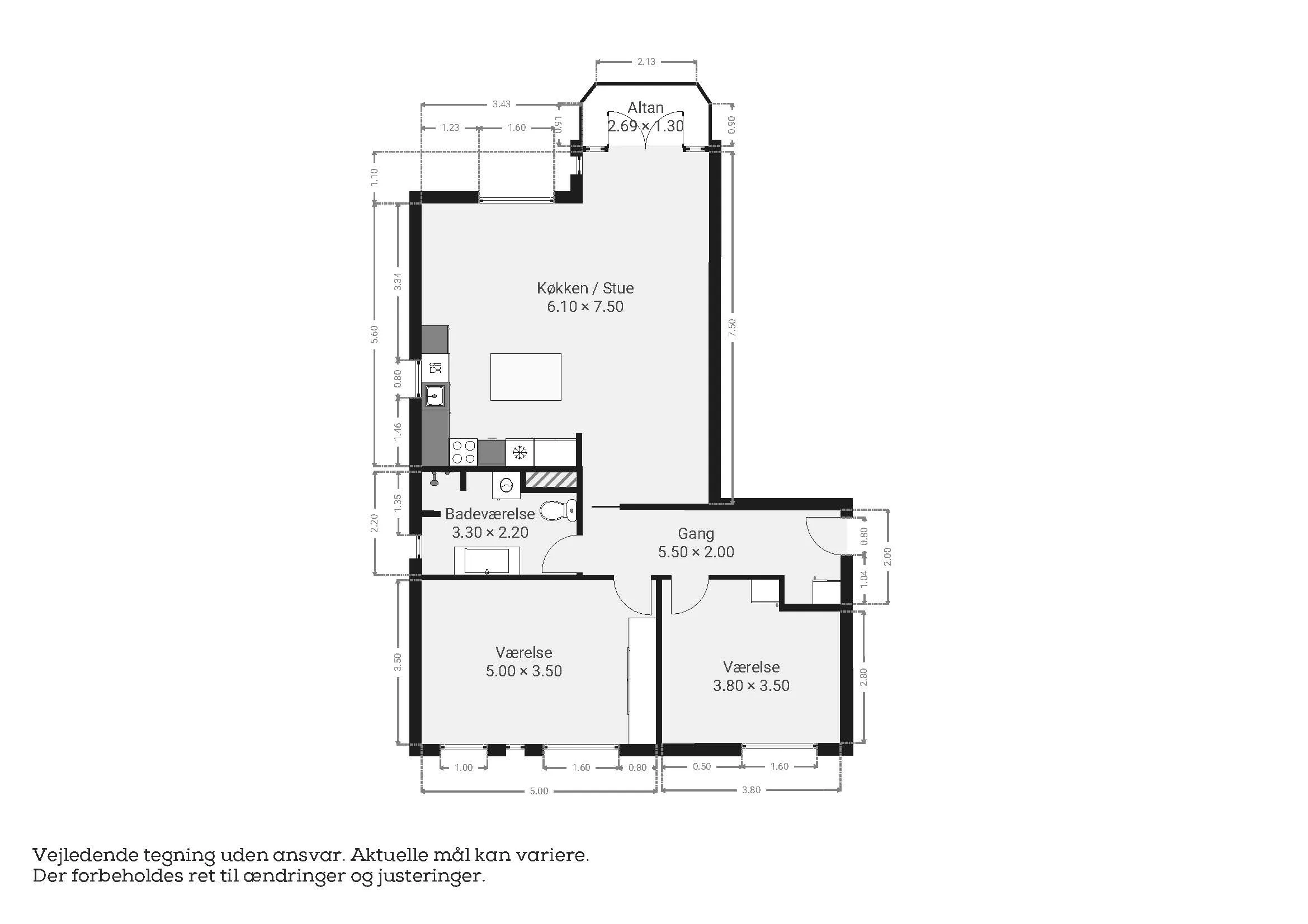
Lejligheden byder på et dejligt stort soveværelse og et ekstra rummeligt værelse, som er ideelt til både ekstra soveværelse, hjemmekontor eller gæsteværelse. Det moderne badeværelse er indrettet med en bruser og skaber en behagelig ramme om dine daglige rutiner. Den rummelige stue og køkkenet er forenet i et åbent rum. Som en ekstra bonus er der en hyggelig altan, hvor du kan nyde både frisk luft og solskin. Lejligheden er udstyret med alle nødvendige hårde hvidevarer, inklusive opvaskemaskine, vaskemaskine og tørretumbler, så du ikke skal tænke på noget ekstra.
Der er mulighed for at få p-kort til en nærliggende parkeringsplads, hvilket gør det nemt for dig at parkere din bil tæt på. Derudover har lejligheden et kælderrum, som giver ekstra opbevaringsplads. Hvis du har et husdyr, kan du søge om tilladelse til at medbringe det. Alle forbrugsomkostninger afregnes direkte med forsyningsselskaberne, hvilket gør det nemt at holde styr på dine udgifter.
Denne lejlighed er perfekt til både enkeltpersoner, par eller små familier, der ønsker en komfortabel og praktisk bolig midt i byen. Med nem adgang til offentlig transport, indkøbsmuligheder og restauranter lige om hjørnet, er dette en unik chance for at bo i Hernings pulserende centrum.
Billeder og plantegning er vejledende.
Kontakt os i dag for at arrangere en fremvisning – vi glæder os til at byde dig velkommen til dit nye hjem.
Møbleret
Ja
Nej
Husdyr tilladt
Ja
Nej
Seniorvenlig
Ja
Nej
Altan/terrasse
Ja
Nej
Opvaskemaskine
Ja
Nej
Ladestander
Ja
Nej
Delevenlig
Ja
Nej
Elevator
Ja
Nej
Kun for studerende
Ja
Nej
Parkering
Ja
Nej
Vaskemaskine
Ja
Nej
Tørretumbler
Ja
Nej
Detaljer om udlejning
Månedlig leje
8.450 kr.
Månedlig aconto
0
Depositum
25.350
Forudbetalt husleje
0
Indflytningspris
33.800 kr.
Lejeperiode
Ubegrænset
Overtagelse
1/7/2026








